# 注释
# 标注

Bi站视频演示看这里 → 标注 (opens new window)
对图纸一键标注,尺寸标注,材质标注,标高标注

尺寸标注的时候一定要注意内部和外部尺寸,因为在二次生成的时候会清理掉前一次的同类型标注
- 参数解析
所有的标注功能都是建立于裁剪视图范围框功能上,所以使用前需先调整视图范围框到合适位置。
- 选择标注边:标注时决定需要标注的方位边。
- 当视图中标注的尺寸小于所设立的忽略值时会忽略不计。标注偏移为基于裁剪范围框的偏移距离。
标注时,先打开视图中的范围框,并调整到相应的位置。
# 特殊线型

可以在线的基础上增加不同符号文字达到区分线型;
- 参数解析
输入文字内容:需在线段中显示的文字。
- 操作步骤
- 点击功能,输入文字内容,点击创建。
- 选择绘制方式和线型样式,在视图中绘制(3D视口无法创建)。
- 创建完成后,按两次Esc键退出,生成特殊线性。
注:项目中第一次创建的时候生成有延时,再次创建后可同步补充

Bi站视频演示看这里 → 特殊线型 (opens new window)
# 平面标注
适用于连接模型

确定好需要使用的标注类型,设立好忽略值与偏移值,然后在所在的视图中点击功能进行生成,可重复点击进行重新生成。
# 立面标注
操作同上,可以选择需要的标注边;
在立面标注的时候可以注意忽略最小值的标注,避免里面中出现太碎的尺寸;
因为里面视图的多样性,难免有标注不完美的地方,生成之后可以手动调整下;

# 剖面标注

可以应用于异形的结构剖面的标注,可增加标注增强参数对一些斜面的点也进行标注;
标注增强是标注算法上的一个区别,在遇到常规不太理性的时候可以打开增强
# 草图快标
点击“标注草图线”然后在需要标注的位置进行绘制,然后 Esc 退出草图绘制,(绘制的草图线要超出需要标注的地方),完成后点击“草图快标”选择画好的线然后再点击需要放置的位置即可生成。 可以勾选草图线下方的功能一次生成多层的标注。

绘制草图线的时候可以一次性在一个视图中把需要标注的地方一次性全绘制好,再拾取生成。绘制草图线一定要垂直要标注物体的参照边
# 框选快标
通过矩形选框的方式进行尺寸快速标注,在框选的时候选框想象成一条线,哪里需要尺寸就在哪里框

操作步骤:绘制需要标注地方的长条选框-->重复标注
标注的位置就是选框的长方向上中间线
Bi站视频演示看这里 → 框选快标 (opens new window)
# 完成面尺寸
在使用工具前先给当前视图创建房间,使用批量创建房间RM

选择是否标注洞口

可以用来标注隔墙尺寸图,和完成面尺寸图,注意内外尺寸类型区分
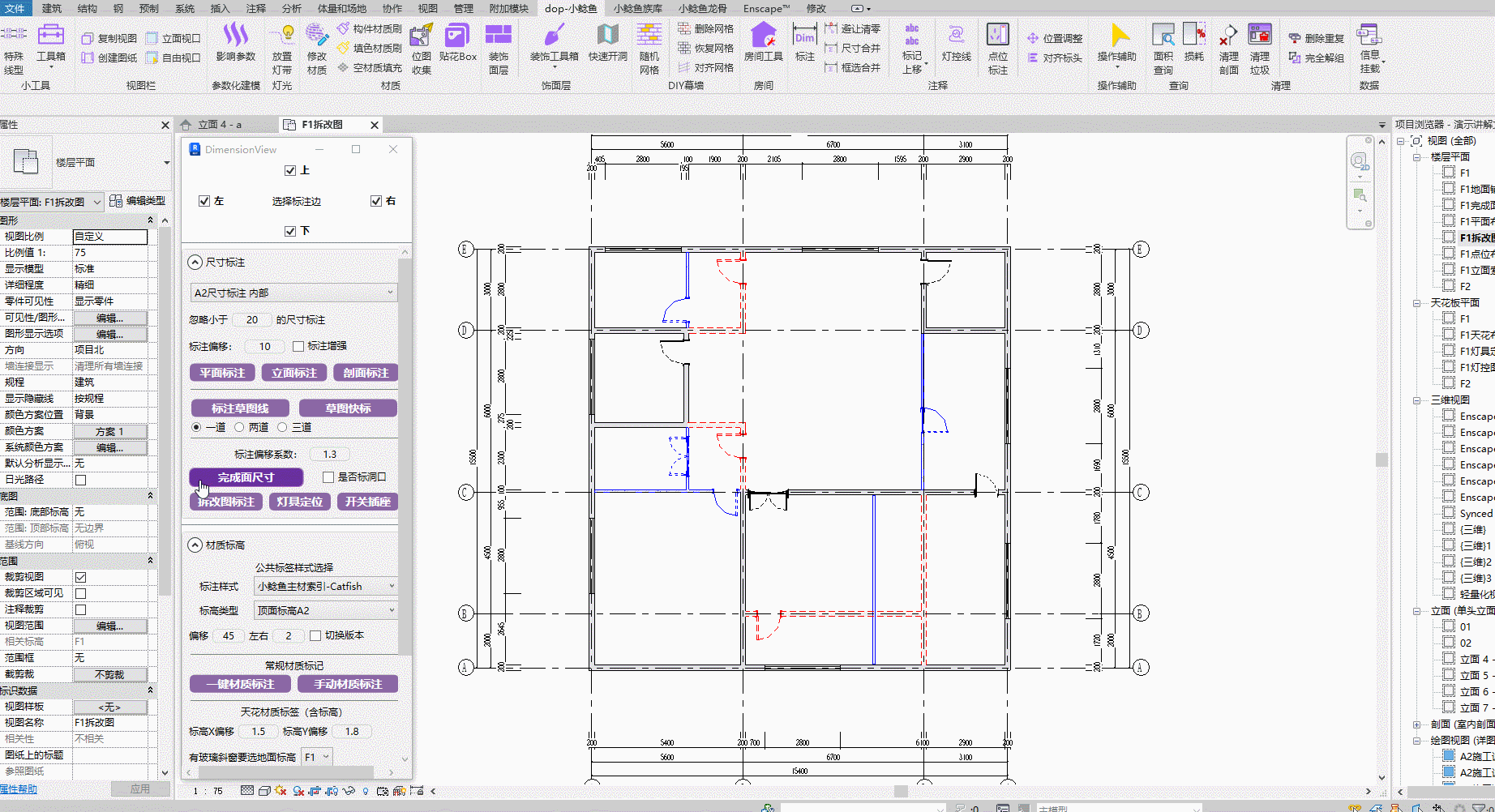
# 拆改图标注

Bi站视频演示看这里 → 标注 (opens new window)
# 灯具定位
框选的时候只能框选一条线上的灯具

Bi站视频演示看这里 → 标注 (opens new window)
# 开关插座
保证开关插座类型是电器装置
框选的时候只能框选一条线上的开关插座

Bi站视频演示看这里 → 标注 (opens new window)
# 索引图

参数中的上下左右后面的两个需要填空的数值是对应图纸的X轴和Y轴,根据自己立面符号的大小进行调整补偿引线的端点的偏移,一次性设置参数,设置后会被保存,之后使用就不需要设置了
Bi站视频演示看这里 → 标注 (opens new window)
# 常规材质标注

排版方式分为四个方向象限斜线排版和上下竖排两个方式,可以在窗口选择切换自己需要的排版,单边数量到一定程度会二排排列节省空间;

这里可以选择软件自带的标头样式,也可以选择自己的样式
标记分为一键材质标注和手动材质标注
一键标注会根据视图中的构件自带材质进行自行标注并排列,如果遇到需要补充的时候就可以选择手动标注来进行不同,这里新增标注会根据之前的排版情况重新进行排版

标注的偏移距离和方位根据自己的习惯来
使用手动补充标注之后不要再使用一键标注了,它会清理掉之前的所有标注再生成
在地面材质图创建的时候建议按照房间创建楼板,方便一键材质识别
Bi站视频演示看这里 → 手动快标的注意事项 (opens new window)
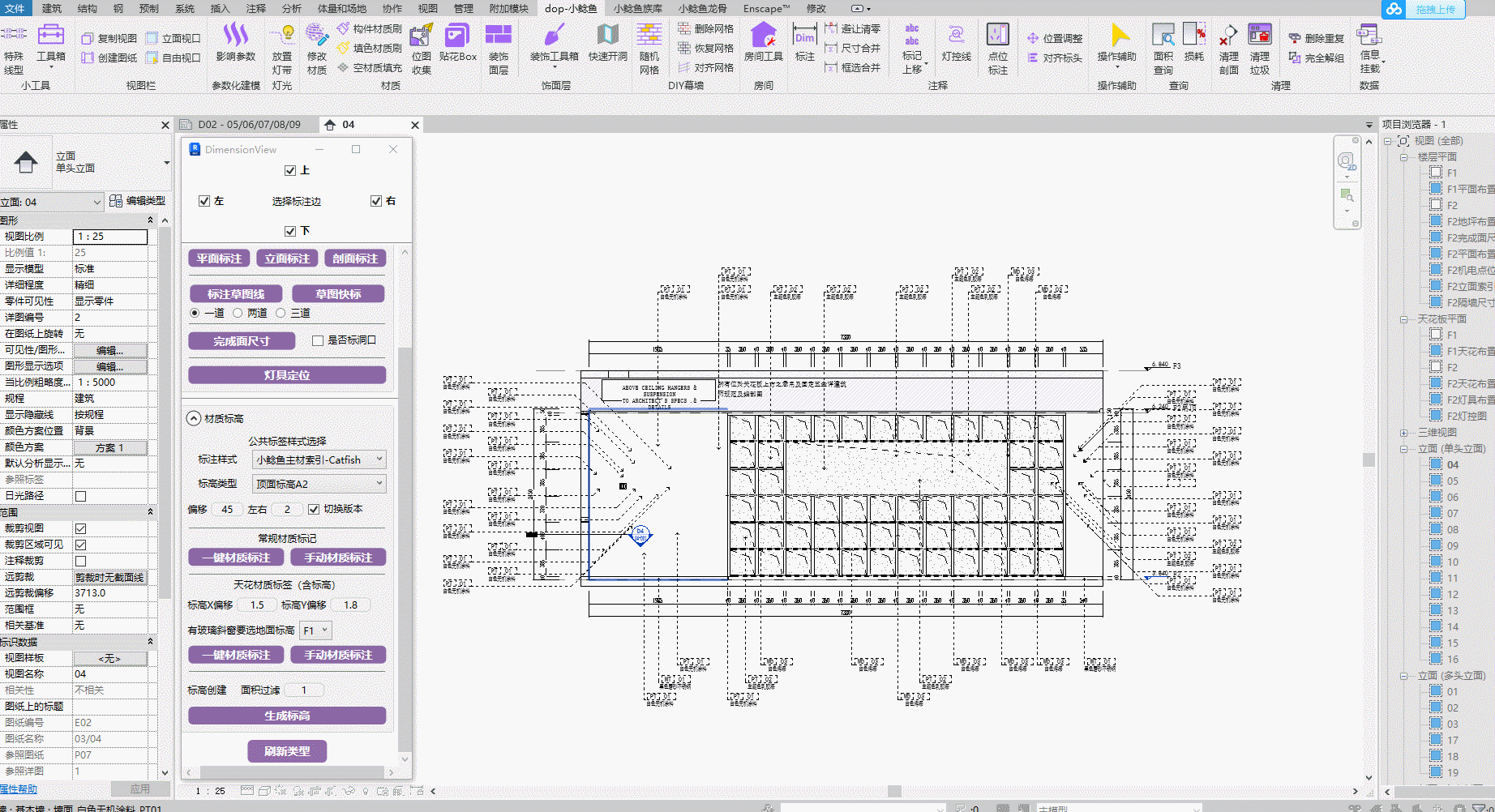
# 天花材质标注
在天花平面创建标高时,会同时使用“标注样式”和“标高类型”两种类型。
标高类型选择只留标注文字,不需要标头的标高类型(自己创建类型);

对于玻璃斜窗中的嵌板标注的时候要注意选择地面相对标高 受限于软件自身无法标注玻璃斜窗的嵌板,插件识别填写
天花标注标高文字偏移问题目前测试2018 2020 是有问题,建议选择其他版本使用;
其他构件将不受此参数的影响

在天花图创建的时候建议按照房间创建楼板天花,方便一键材质识别
Bi站视频演示看这里 → 天花材质标注 (opens new window)
Bi站视频演示看这里 → 天花材质标高创建注意 (opens new window)
# 标高创建

标高创建和构件有关,建议楼板创建按照房间创建
# 避让清零

对数值拥挤的标注进行数字避让,对有0值的标注进行清零
是对整个视图中的尺寸进行避让清零操作,建议标注完成之后再操作
# 尺寸合并

点击功能然后选择需要合并的尺寸,再点击需要放置的方位即可。

# 框选合并

框选需要合并尺寸的部位,即可对当前选中的标注部分的尺寸合并为一个。
注意框选的时候只能框选一道尺寸

Bi站视频演示看这里 → 避让清零、尺寸合并、框选合并 (opens new window)
# 标记上移

对于批量族标记,将标记移动到族的上方,避免一下标记和族重叠的情况

# 标记避让

如果标记过于拥挤,可以使用避让展开标记
Bi站视频演示看这里 → 标记上移、标记避让 (opens new window)
# 灯控线

第一次选择照明设备族,多次框选esc结束;
第二次选择非照明设备族,多次点选esc结束;
第三次选择开关;
# 点位标注

- 参数解析

- R 是对图中点位按照半径进行归堆并进行排列的依据,也就是对应范围圈里的点位会放到一块来进行标注排版
# 点位标注/手动框选
一键对生成的开关点位注释展开排版并注释。这里的开关点位需使用小鲶鱼专用的族才可生效,在族库中有已上传的模型。
也可以手动框选自主补充标注;


# 点位展开

仅对开关点位的注释符号进行展开排列,不对机电点位模型的放置位置造成影响。
仅应用于小鲶鱼专用插座开关

Bi站视频演示看这里 → 点位标注、点位展开 (opens new window)
# 高度更新

基于调整高度的开关点位对其标注的高度数值进行更新。

# 位置调整

对需要调整的点位标注进行同步移动而不影响原先排序。

Bi站视频演示看这里 → 高度更新、位置调整 (opens new window)
# 一键点标
一键标注所有的点位在视图两侧;
# 手动框选放置

操作步骤:框选需要标注的点位-->点击注释放置的方位;
Bi站视频演示看这里 → 一键点标、手动框选放置 (opens new window)
# 对齐标头

根据绘制线的方式对齐标注的标头
执行标注偏移功能后,需先选定目标标注集。待光标变为十字准星后,在需求位置绘制基准线,完成操作后按Esc键退出。
注意:仅当所选标注为同方向标注组时,偏移功能方可生效。

Bi站视频演示看这里 → 对齐标头 (opens new window)