# 视图栏
# 复制视图

批量复制创建多楼层的相关视图
- 参数解析

窗口所示为项目中所存在的平面视图。
下方的选项栏对应的为项目自身所具有的复制视图选项。

- 新名称:复制后的视图平面的名称。
- 功能使用
选择需要复制的视图平面,确立好复制条件与名称,点击创建视图即可。

如果在项目中新增删除视图后,需要点击刷新视图进行更新。
Bi站视频演示看这里 → 复制视图 (opens new window)
# 视图样板
支持视图快速调用预设样板,通过独立继承机制保持视图预设,并支持自定义比例及图形设定,避免样板关联锁定。

- 操作步骤
在活动视口直接选择需要的视图样板进行应用即可;
Bi站视频演示看这里 → 视图样板 (opens new window)
# 创建图纸

自动完成视口配置与图幅参数计算,实现批量图纸自动生成。
图纸中视口的排布会根据视口的大小和图框的大小进行自定排版,建议先把对应的视口的比例根据图纸调整合适;
- 参数解析
以下参数都为一次性设置,会保存用户的数据。数值均为打印图纸中的实际距离;

视图边距:
图纸中两两视图范围框之间的间隔距离。

图纸缩减:
放置的视图与图纸四周的缩减距离。

布置中心偏移:
当前图纸放置的所有视口综合取一个中心点,根据图纸框的中心对前面的综合中心点位置进行的左右/上下偏移。
标题下移:
视图范围框与视口标题栏之间的偏移距离。

图框类型选择:
需要生成的图纸中的图框类型。
图纸标签类型选择:
图纸中视图的视口标题类型。
选择需要进行布局的视图平面,调整好对应的图框与标签类型,点击创建即可。

在创建平面系列的图纸的时候,可能每个视口的标签都不同,可以单张选择对应的标签,也可以批量按照一个创建好,最后手动修替换下图纸中的标签
Bi站视频演示看这里 → 创建图纸 (opens new window)
# 图纸编号
对图纸编号重新命名并排列顺序
- 参数解析

- 序号参数名:这里根据对应语言版本自行设置,当前显示为中文预设字段可以直接忽略。
如果遇到在图纸属性栏看不到序号的参数名,请自行给图纸添加对应的项目参数
图纸可以直接选中拖放到对应的前后位置就行。
选中需要重命名编号的图纸,这里针对具有相同前缀的图纸,直接在前缀参数输入需要的前缀并修改,可得到前缀+顺序的图纸编号。
调整完顺序的图纸序号,在下方点击序号重排就可以把图纸的序号按照调整的顺序编号。
Bi站视频演示看这里 → 图纸编号 (opens new window)
# 部件

此功能分单构件的部件出图和多部件出图:
单部件出图视图名为构件的名字,所以要记得标准命名
多构件出图视图名单独命名
多构件出图操作如下,先框选需要出图的元素,二次选择一下前视图平行的一条线作为视图参照线

标注样式是剖面符号的样式
Bi站视频演示看这里 → 部件 (opens new window)
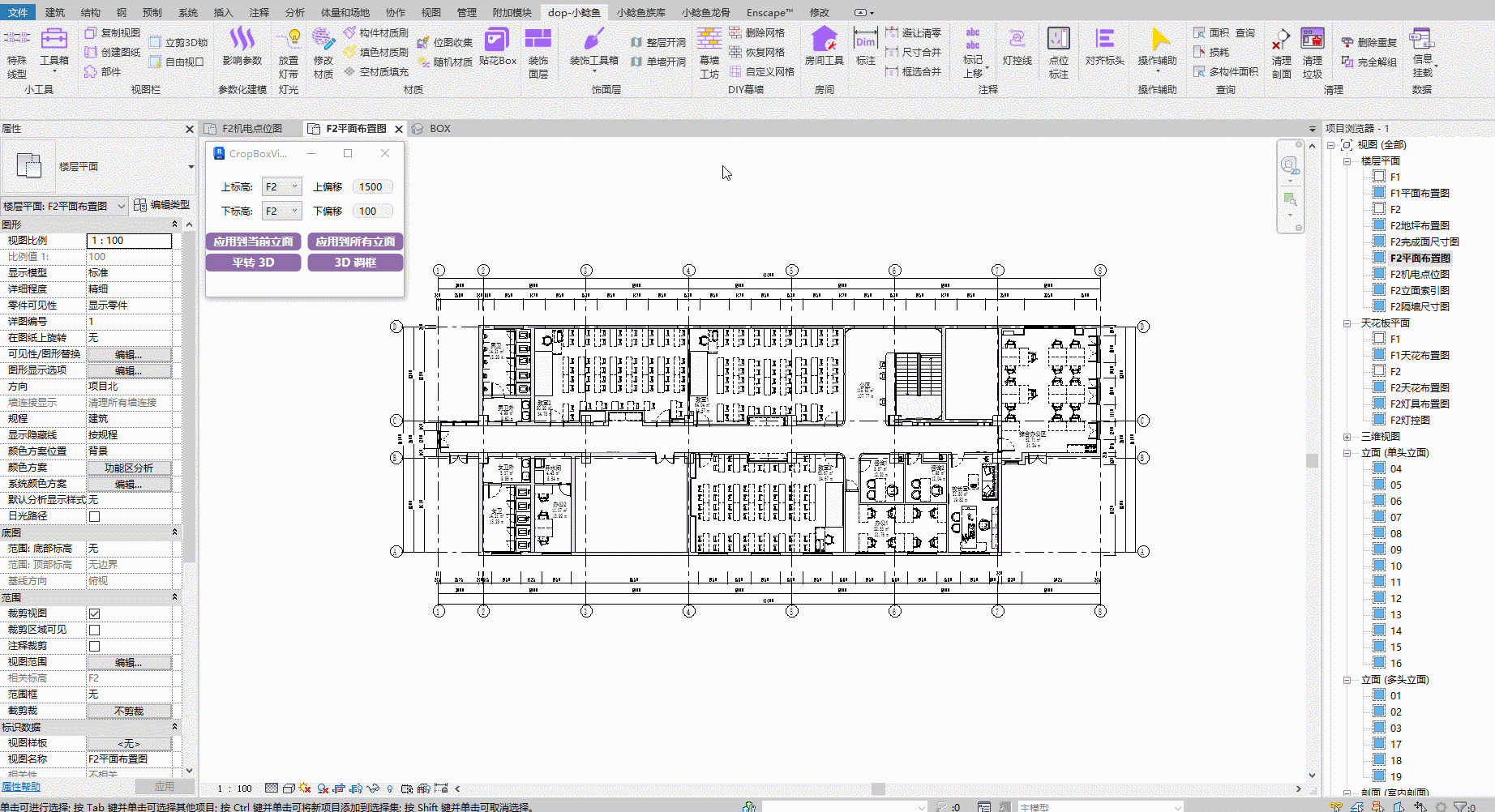
# 立剪3D锁

给生成的立面视图进行统一的视口高度调整

选择的上下标高和偏移值就是对立面视口中的上下裁剪框的边界位置进行统一调整

图纸中蓝色的框就是调整后的裁剪框
在有多楼层的立面图调整的时候,不要使用应用到所有立面的按钮,请使用当前立面单独应用
平转3D/3D调框:

操作步骤:调整好高度范围-->在平面视图点击平转3D
3D调框:对3D视图的高度范围直接进行调整;
Bi站视频演示看这里 → 平转3D/3D调框 (opens new window)
# 自由视口

鼠标框选的方式定义视图的裁剪框
